
View from the street


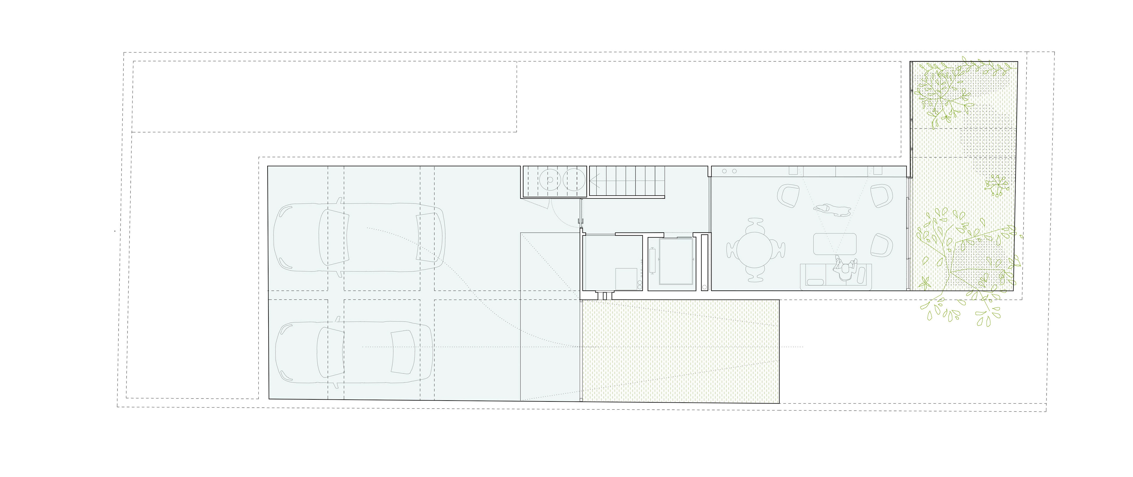
Basement. Garage and summer living room with patio

Ground floor. Entrance through a bridge over patio. Garden and swimming pool

First floor. Main bedroom. Bathroom with enclosed terrace

Second floor. Guest bedroom and studio. Connection to rooftop through spiral stair over terrace

Rooftop solarium

Entrance through bridge over basement patio

Patio

Main elevation and section through basement patio and bridge

Long swimming pool

Metal laser cut shades

Garage

South elevation. Section through garage ramp

Living room

Stairs

View towards the kitchen

Staircase and laser cut shades

Detail

Long section


View from main bedroom


Bathroom and terrace

Bathroom and terrace

Spiral stair connecting solarium over enclosed terrace

Section through terrace and backyard elevation


Guests floor

Studio with connection to rooftop

North elevation

Aerial view

Top view over patio

Aerial view

Axonometric view

View from the street

Night view